Загрузка...

Деревянный дом у озера - фото

Деревянный дом у озера

20 фото и 332 просм.

На Каллаксоне архипелаге Норрботтен за пределами Лулео расположен Гранхольмен, где находится участок с построенным летним домом на бетонных столбах.
Домик построен у кромки воды, он замечательно подойдет для семьи, которая летом любит, проводит время на своей даче.
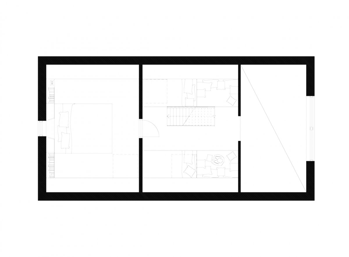
Хотя домик выглядит одноэтажным, на самом деле в нем есть мансардный этаж.
Обеденная зона, кухня и гостиная организованы вокруг лестницы, а в тихом уголке есть кушетка. Между тем наверху есть главная спальня на чердаке.
Из большой оконной секции от пола до потолка, открывается очень красивый панорамный вид на озеро.
Весь внутренний интерьер облицован массивной необработанной сосновой доской.
Можно сделать своими руками!
Источник: dezeen.com/2019/09/03/granholmen-cabin-green-summerhouse-bornstein-lyckefors-sweden/?li_source=LI&li_medium=bottom_block_1
Деревянный дом у озера - фото 2
Деревянный дом у озера - фото 3
Деревянный дом у озера - фото 4
Деревянный дом у озера - фото 5
Деревянный дом у озера - фото 6
Деревянный дом у озера - фото 7
Деревянный дом у озера - фото 8
Деревянный дом у озера - фото 9
Деревянный дом у озера - фото 10
Деревянный дом у озера - фото 11
Деревянный дом у озера - фото 12
Деревянный дом у озера - фото 13
Деревянный дом у озера - фото 14
Деревянный дом у озера - фото 15
Деревянный дом у озера - фото 16
Деревянный дом у озера - фото 17
Деревянный дом у озера - фото 18
Деревянный дом у озера - фото 19
Деревянный дом у озера - фото 20
Похожие записи

Комментарий

Комментариев пока нет.
Выполните вход, чтобы оставить отзыв.