Загрузка...

Детский домик для дачи - фото

Детский домик для дачи

35 фото и 494 просм.

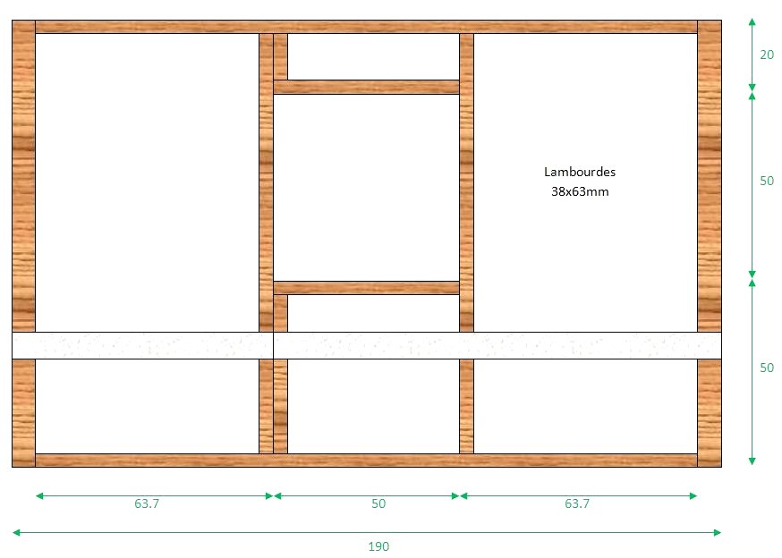
Это пример детского игрового домика для дачи, сделанного частично с использованием поддонов. На строительство домика ушло около 3 дней.
Домик стоит на 6 деревянных столбах (высота 85 см, диаметр 18 см), вмурованных в бетон, как показано ниже на фото пошагово выполненная работа.
Можно сделать своими руками!
Источник: instructables.com/id/Make-a-Childrens-Log-Cabin-With-Pallets/
Детский домик для дачи - фото 2
Детский домик для дачи - фото 3
Детский домик для дачи - фото 4
Детский домик для дачи - фото 5
Детский домик для дачи - фото 6
Детский домик для дачи - фото 7
Детский домик для дачи - фото 8
Детский домик для дачи - фото 9
Детский домик для дачи - фото 10
Детский домик для дачи - фото 11
Детский домик для дачи - фото 12
Детский домик для дачи - фото 13
Детский домик для дачи - фото 14
Детский домик для дачи - фото 15
Детский домик для дачи - фото 16
Детский домик для дачи - фото 17
Детский домик для дачи - фото 18
Детский домик для дачи - фото 19
Детский домик для дачи - фото 20
Детский домик для дачи - фото 21
Детский домик для дачи - фото 22
Детский домик для дачи - фото 23
Детский домик для дачи - фото 24
Детский домик для дачи - фото 25
Детский домик для дачи - фото 26
Детский домик для дачи - фото 27
Детский домик для дачи - фото 28
Детский домик для дачи - фото 29
Детский домик для дачи - фото 30
Детский домик для дачи - фото 31
Детский домик для дачи - фото 32
Детский домик для дачи - фото 33
Детский домик для дачи - фото 34
Детский домик для дачи - фото 35
Похожие записи

Комментарий

Комментариев пока нет.
Выполните вход, чтобы оставить отзыв.