Загрузка...

Финская сауна для семьи - фото

Финская сауна для семьи

15 фото и 572 просм.

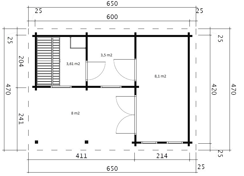
Финская сауна 6х4 метра идеально подойдет для семьи из 3-5 человек или для встреч с друзьями. В сауне есть комната 2x4 м для переодевания и отдыха, отдельная комната для душа, сауна 2x2 м и просторная веранда 2x4 м. Сауна построена из хвойного дерева 70 мм толщины. То что надо для хорошего отдыха.
Можно сделать своими руками!
Источник: facebook.com/pg/summerhouse24/photos/?ref=page_internal
Финская сауна для семьи - фото 2
Финская сауна для семьи - фото 3
Финская сауна для семьи - фото 4
Финская сауна для семьи - фото 5
Финская сауна для семьи - фото 6
Финская сауна для семьи - фото 7
Финская сауна для семьи - фото 8
Финская сауна для семьи - фото 9
Финская сауна для семьи - фото 10
Финская сауна для семьи - фото 11
Финская сауна для семьи - фото 12
Финская сауна для семьи - фото 13
Финская сауна для семьи - фото 14
Финская сауна для семьи - фото 15
Похожие записи

Комментарий

Комментариев пока нет.
Выполните вход, чтобы оставить отзыв.