Загрузка...

Маленький дачный домик на колесах - фото

Маленький дачный домик на колесах

9 фото и 472 просм.

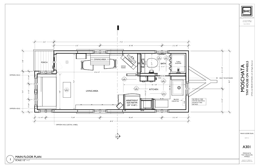
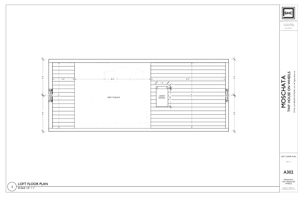
Маленький домик на колесах построен в скандинавском стиле.
Благодаря высокому потолку, имеется уютное спальное место под потолком, полностью оборудованная кухня, прачечная, ванна с душем и просторная гостиная - все это делает его идеальным маленьким домом на даче, или местом под офис.
Источник: smallhousecatalog.com/catalog/moschata
Маленький дачный домик на колесах - фото 2
Маленький дачный домик на колесах - фото 3
Маленький дачный домик на колесах - фото 4
Маленький дачный домик на колесах - фото 5
Маленький дачный домик на колесах - фото 6
Маленький дачный домик на колесах - фото 7
Маленький дачный домик на колесах - фото 8
Маленький дачный домик на колесах - фото 9
Похожие записи

Комментарий

Комментариев пока нет.
Выполните вход, чтобы оставить отзыв.