Загрузка...

Мини банька из бруса - фото

Мини банька из бруса

6 фото и 462 просм.

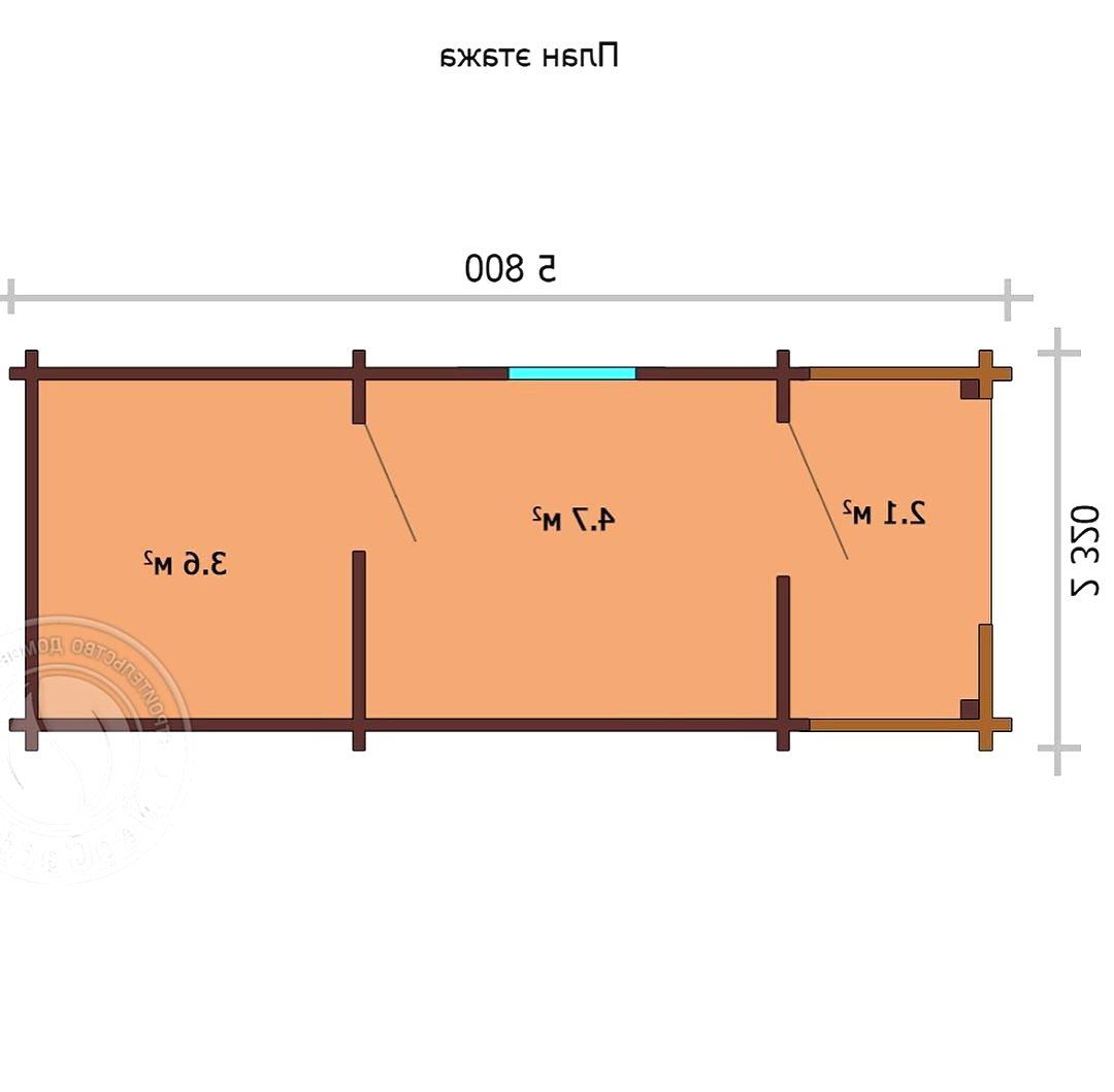
Мини банька небольшого размера 2,3х5,8 метров, построена из экобруса в 70 мм, сауна обшита изнутри вагонкой из осины.
Можно сделать своими руками!
Источник: instagram.com/p/B9JGstlJi85/
Мини банька из бруса - фото 2
Мини банька из бруса - фото 3
Мини банька из бруса - фото 4
Мини банька из бруса - фото 5
Мини банька из бруса - фото 6
Похожие записи

Комментарий

Комментариев пока нет.
Выполните вход, чтобы оставить отзыв.