Загрузка...

Необычный дом с башней - фото

Необычный дом с башней

11 фото и 288 просм.

Этот необычный дом расположен на ферме в калифорнийской долине Сакраменто. Он был спроектирован их сыном, Льюисом Батлером.
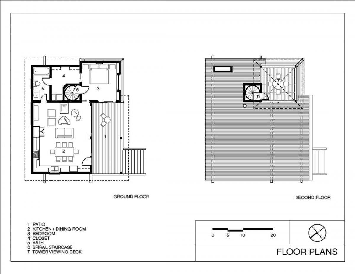
Поскольку окружающая земля довольно ровная, был выбран дизайн из двух разных конструкций, где одна часть, дома построенная по образцу старомодных водонапорных башен. Другая же это небольшой дом с односкатной крышей, в нем находится гостиная с раздвижными дверями, ведущими к крытой веранде. В отличие от простого аграрного внешнего вида, интерьер довольно современный, с паркетным полом и отделкой из еловой фанеры.
Главная спальня находится у основания башни, а в мансарде над ванной находится второе спальное место. Главная спальня имеет очень высокий потолок и выглядит почти в два раза выше. Винтовая лестница ведет из спальни на смотровую площадку на вершине башни, с которой открывается 360-градусный обзор на равнину.

Можно сделать своими руками!
Источник: smallhousebliss.com
Необычный дом с башней - фото 2
Необычный дом с башней - фото 3
Необычный дом с башней - фото 4
Необычный дом с башней - фото 5
Необычный дом с башней - фото 6
Необычный дом с башней - фото 7
Необычный дом с башней - фото 8
Необычный дом с башней - фото 9
Необычный дом с башней - фото 10
Необычный дом с башней - фото 11
Похожие записи

Комментарий

Комментариев пока нет.
Выполните вход, чтобы оставить отзыв.