Загрузка...

Просторный дом для скандинавского климата

20 фото и 332 просм.

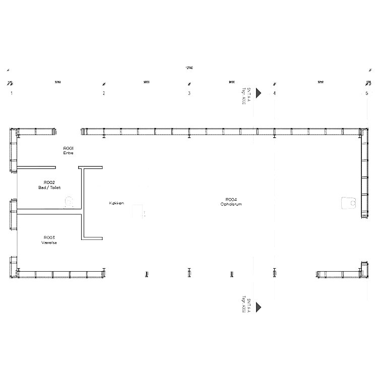
Barnhousecabin спроектировал и построил просторный дом для скандинавского климата, возле озера в лесу где-то к северу от Копенгагена. Простые стальные рамы обеспечивают полную гибкость конфигурации окон и стен, а также быструю сборку на месте. Стены частично изготовлены из деревянных панелей, собранных на месте. Прихожая, ванная комната и небольшая спальня в одном конце отделены кухней, от основной комнаты. На вершине трех небольших помещений у нас есть спальный чердак. Внешние размеры дома составляют 12,5 х 5,4 метра.
Просторный дом для скандинавского климата - фото 2
Просторный дом для скандинавского климата - фото 3
Просторный дом для скандинавского климата - фото 4
Просторный дом для скандинавского климата - фото 5
Просторный дом для скандинавского климата - фото 6
Просторный дом для скандинавского климата - фото 7
Просторный дом для скандинавского климата - фото 8
Просторный дом для скандинавского климата - фото 9
Просторный дом для скандинавского климата - фото 10
Просторный дом для скандинавского климата - фото 11
Просторный дом для скандинавского климата - фото 12
Просторный дом для скандинавского климата - фото 13
Просторный дом для скандинавского климата - фото 14
Просторный дом для скандинавского климата - фото 15
Просторный дом для скандинавского климата - фото 16
Просторный дом для скандинавского климата - фото 17
Просторный дом для скандинавского климата - фото 18
Просторный дом для скандинавского климата - фото 19
Просторный дом для скандинавского климата - фото 20
Похожие записи

Комментарий

Комментариев пока нет.
Выполните вход, чтобы оставить отзыв.