Загрузка...

Дачный домик на 6 сотках - фото

Дачный домик на 6 сотках

8 фото и 626 просм.

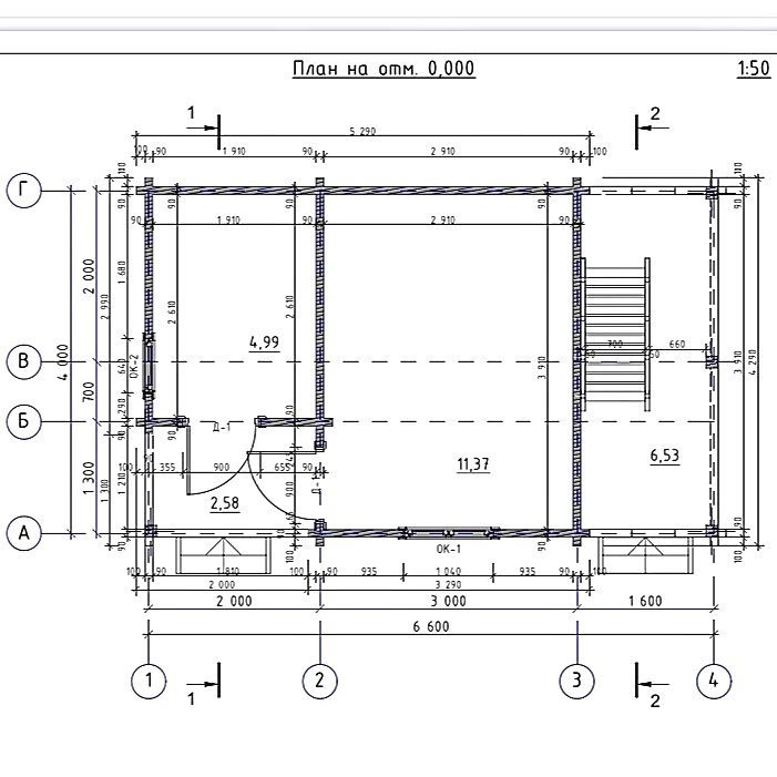
Хотите построить дачный домик своими руками из бруса? Предлагаю посмотреть в качестве примера этот вариант – двухэтажный дачный домик из бруса на сваях построенный на 6 сотках.
Есть размеры и чертежи.
Можно сделать своими руками!
Источник: instagram.com/p/CHQGnPCFyI5/
Дачный домик на 6 сотках - фото 2
Дачный домик на 6 сотках - фото 3
Дачный домик на 6 сотках - фото 4
Дачный домик на 6 сотках - фото 5
Дачный домик на 6 сотках - фото 6
Дачный домик на 6 сотках - фото 7
Дачный домик на 6 сотках - фото 8
Похожие записи

Комментарий

Комментариев пока нет.
Выполните вход, чтобы оставить отзыв.