Загрузка...

Очень красивый дом из бруса - фото

Очень красивый дом из бруса

29 фото и 369 просм.

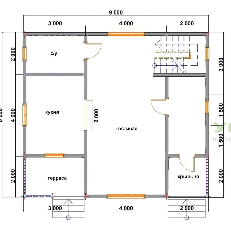
Очень красивый 1,5 этажный дом из бруса.
Вот такой домик построили на участке 8 соток в 5 км от Питера.
Сложность была в том, что на участке слой торфа составляет 4 -5 метров.
Фундамент выбирали бюджетный и быстрый, это свайное поле с обвязкой для надёжности. Дом решили ставить на высоте 70 см от земли. Дом строили не сами, заказывали строительство через фирму.
Источник: instagram.com/house_malina/
Очень красивый дом из бруса - фото 2
Очень красивый дом из бруса - фото 3
Очень красивый дом из бруса - фото 4
Очень красивый дом из бруса - фото 5
Очень красивый дом из бруса - фото 6
Очень красивый дом из бруса - фото 7
Очень красивый дом из бруса - фото 8
Очень красивый дом из бруса - фото 9
Очень красивый дом из бруса - фото 10
Очень красивый дом из бруса - фото 11
Очень красивый дом из бруса - фото 12
Очень красивый дом из бруса - фото 13
Очень красивый дом из бруса - фото 14
Очень красивый дом из бруса - фото 15
Очень красивый дом из бруса - фото 16
Очень красивый дом из бруса - фото 17
Очень красивый дом из бруса - фото 18
Очень красивый дом из бруса - фото 19
Очень красивый дом из бруса - фото 20
Очень красивый дом из бруса - фото 21
Очень красивый дом из бруса - фото 22
Очень красивый дом из бруса - фото 23
Очень красивый дом из бруса - фото 24
Очень красивый дом из бруса - фото 25
Очень красивый дом из бруса - фото 26
Очень красивый дом из бруса - фото 27
Очень красивый дом из бруса - фото 28
Очень красивый дом из бруса - фото 29
Похожие записи

Комментарий

Комментариев пока нет.
Выполните вход, чтобы оставить отзыв.