Загрузка...

Дом необычной̆ архитектуры. - фото

Дом необычной̆ архитектуры.

10 фото и 456 просм.

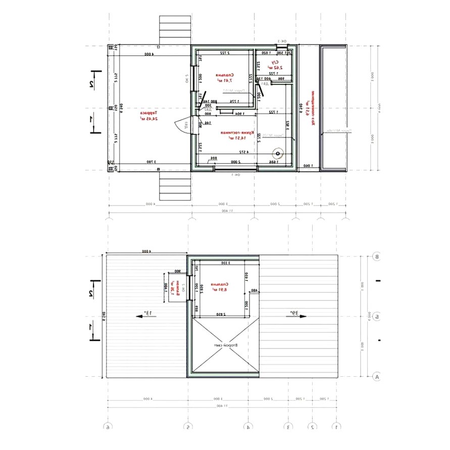
Хочу показать вам дом необычной формы, что так напоминает треугольник. Сам дом построен по каркасной̆ технологии, на свайно-винтавом фундаменте.

Площадь дома составляет 81 м2
Размеры 6.0х11,4 м.
Источник: instagram.com/p/CJApWH1lS7N/
Дом необычной̆ архитектуры. - фото 2
Дом необычной̆ архитектуры. - фото 3
Дом необычной̆ архитектуры. - фото 4
Дом необычной̆ архитектуры. - фото 5
Дом необычной̆ архитектуры. - фото 6
Дом необычной̆ архитектуры. - фото 7
Дом необычной̆ архитектуры. - фото 8
Дом необычной̆ архитектуры. - фото 9
Дом необычной̆ архитектуры. - фото 10
Похожие записи

Комментарий

Комментариев пока нет.
Выполните вход, чтобы оставить отзыв.