Загрузка...

Как построить сауну недорого своими руками. - фото

Как построить сауну недорого своими руками.

17 фото и 1424 просм.

Как построить сауну своими руками
Постройка сауны своими руками может стать отличным способом сэкономить деньги и создать индивидуальный оазис для релаксации и оздоровления. Вот подробная пошаговая инструкция, которая поможет вам создать собственную сауну.
Материалы:
• Доски из кедрового дерева или других пород, подходящих для саун (поддоны)
• Печь для сауны
• Дверца для сауны
• Камни для сауны
• Изоляция
• Пароизоляция
• Деревянные рейки для полок
• Метизы (гвозди, шурупы)
Инструменты:
• Пила
• Дрель
• Молоток
• Уровень
• Измерительная лента
• Защитные очки и перчатки
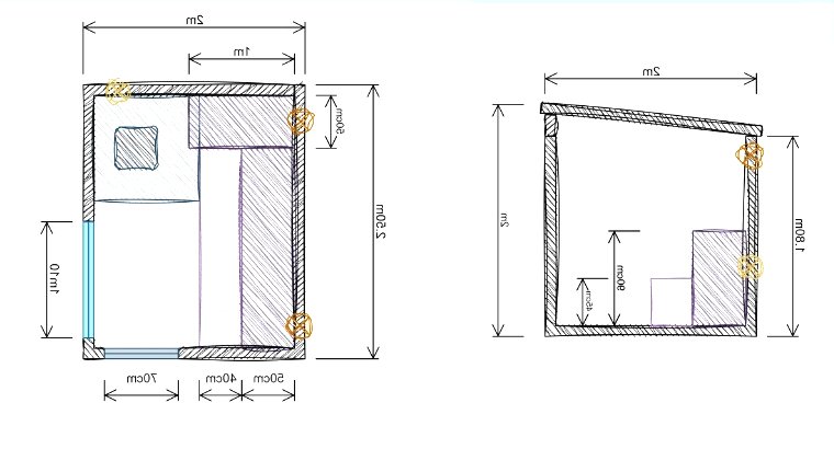
Шаг 1: Планирование и чертеж
Начните с тщательного планирования вашей сауны. Определите ее размер, форму и расположение. Создайте чертеж с указанием всех размеров и деталей.
Шаг 2: Каркас
Соберите каркас сауны из досок. Используйте доски толщиной не менее 2,5 см для прочности. Соберите стены, потолок и пол, скрепив их гвоздями или шурупами.
Шаг 3: Изоляция
Для поддержания тепла изолируйте стены, пол и потолок сауны. Установите пароизоляцию поверх изоляции, чтобы предотвратить проникновение влаги.
Шаг 4: Печь
Установите печь для сауны в соответствии с инструкциями производителя. Выберите печь, которая будет соответствовать размеру вашей сауны.
Шаг 5: Полки
Установите деревянные рейки для полок на разных уровнях. Оставьте достаточно места между рейками для циркуляции воздуха.
Шаг 6: Дверь
Установите дверцу для сауны. Выберите дверцу, изготовленную из термостойкого стекла или другого подходящего материала.
Шаг 7: Камни
Поместите камни для сауны в печь. Камни будут нагреваться печью и выделять пар.
Шаг 8: Отделка
Отделайте стены и потолок сауны досками из кедрового дерева или другого подходящего материала. Убедитесь, что все гвозди и шурупы утоплены.
Шаг 9: Электропроводка
Обеспечьте электропроводку для печи и освещения. Убедитесь, что вся электропроводка выполнена квалифицированным электриком.
Шаг 10: Испытание
Наконец, пришло время расслабиться и насладиться вашей самодельной сауной. Бросьте воду на камни, чтобы создать пар, и испытайте все преимущества этого оздоровительного опыта.
Советы по экономии:
• Используйте поддоны для строительства каркаса сауны
• Соберите свою собственную печь с использованием материалов, купленных в магазине товаров для дома
• Используйте остатки материалов от других проектов
• Сделайте полки и сиденья своими руками
Источник: https://www.instructables.com/My-Pallet-Sauna/
Как построить сауну недорого своими руками. - фото 2
Как построить сауну недорого своими руками. - фото 3
Как построить сауну недорого своими руками. - фото 4
Как построить сауну недорого своими руками. - фото 5
Как построить сауну недорого своими руками. - фото 6
Как построить сауну недорого своими руками. - фото 7
Как построить сауну недорого своими руками. - фото 8
Как построить сауну недорого своими руками. - фото 9
Как построить сауну недорого своими руками. - фото 10
Как построить сауну недорого своими руками. - фото 11
Как построить сауну недорого своими руками. - фото 12
Как построить сауну недорого своими руками. - фото 13
Как построить сауну недорого своими руками. - фото 14
Как построить сауну недорого своими руками. - фото 15
Как построить сауну недорого своими руками. - фото 16
Как построить сауну недорого своими руками. - фото 17
Похожие записи

Комментарий

Комментариев пока нет.
Выполните вход, чтобы оставить отзыв.