Загрузка...

Небольшой каркасный дом для дачи - фото

Небольшой каркасный дом для дачи

7 фото и 3732 просм.

Проект небольшого дома, но с очень интересным фасадом. Очень интересная идея с двухскатной кровлей, на разных уровнях придаёт дому совсем иной вид, более современный.
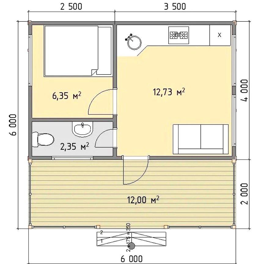
Дачный дом построен каркасным методом. В нем есть все самое необходимое для проживания: одна спальня, большая и светлая гостиная-столовая, совмещенная с кухней, санузел. Вход в дом через большую террасу.
Источник: instagram.com/p/CHfStuhlrCS/
Небольшой каркасный дом для дачи - фото 2
Небольшой каркасный дом для дачи - фото 3
Небольшой каркасный дом для дачи - фото 4
Небольшой каркасный дом для дачи - фото 5
Небольшой каркасный дом для дачи - фото 6
Небольшой каркасный дом для дачи - фото 7
Похожие записи

Комментарий

Комментариев пока нет.
Выполните вход, чтобы оставить отзыв.