Загрузка...

Небольшой домик для дачи - фото

Небольшой домик для дачи

17 фото и 420 просм.

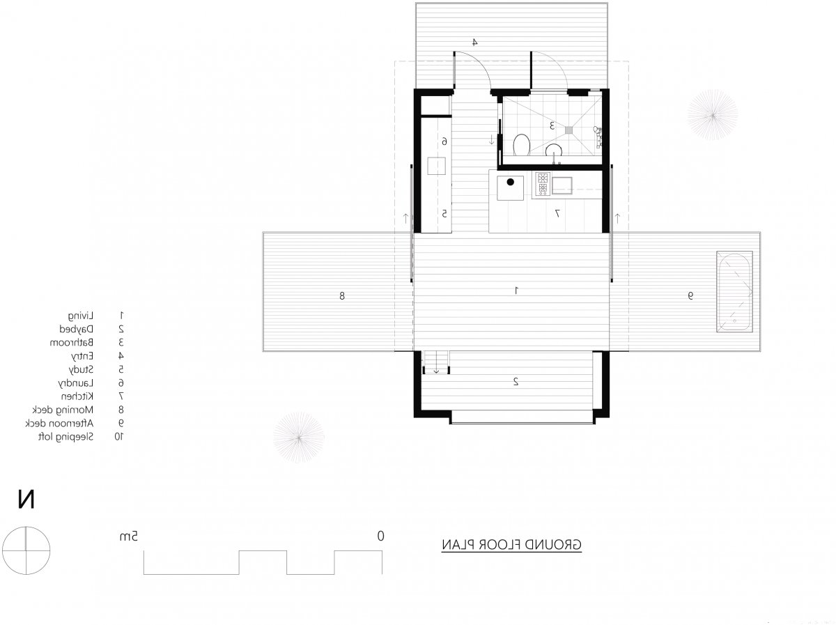
Еще один из вариантов каркасных дачных домиков с односкатной крышей, построенным на небольшом склоне. Этот небольшой домик может стать для вас отличным местом отдыха на открытом воздухе.
Сбор дождевой воды в установленный бак обеспечивает поступление воды в душевую кабину, а с помощью солнечных батарей получаем электричество.
Дровяная печь осуществляет обогрев всего дома, нагрев воды и работу плиты обеспечивает газовый баллон.
Газовые баллоны и дрова хранятся в отдельном месте, расположенном выше по склону, который служит защитным экраном.
Большинство окон смотрят на юг, откуда открывается вид. Световые панели на крыше расположены под углом, чтобы солнечный свет всегда попадал туда.
На одной стороне открытой террасы установлена ванна под открытым небом.
Снаружи стены дома обшиты панелями из цинкового сплава и дерева, устойчивых к лесным пожарам, в соответствии с местными правилами безопасности при лесных пожарах.
Можно сделать своими руками!
Источник: dezeen.com/2020/06/24/maguire-devin-bruny-island-cabin-australia-architecture/?li_source=LI&li_medium=bottom_block_1
Небольшой домик для дачи - фото 2
Небольшой домик для дачи - фото 3
Небольшой домик для дачи - фото 4
Небольшой домик для дачи - фото 5
Небольшой домик для дачи - фото 6
Небольшой домик для дачи - фото 7
Небольшой домик для дачи - фото 8
Небольшой домик для дачи - фото 9
Небольшой домик для дачи - фото 10
Небольшой домик для дачи - фото 11
Небольшой домик для дачи - фото 12
Небольшой домик для дачи - фото 13
Небольшой домик для дачи - фото 14
Небольшой домик для дачи - фото 15
Небольшой домик для дачи - фото 16
Небольшой домик для дачи - фото 17
Похожие записи

Комментарий

Комментариев пока нет.
Выполните вход, чтобы оставить отзыв.