Загрузка...

Необычная баня из бруса - фото

Необычная баня из бруса

6 фото и 414 просм.

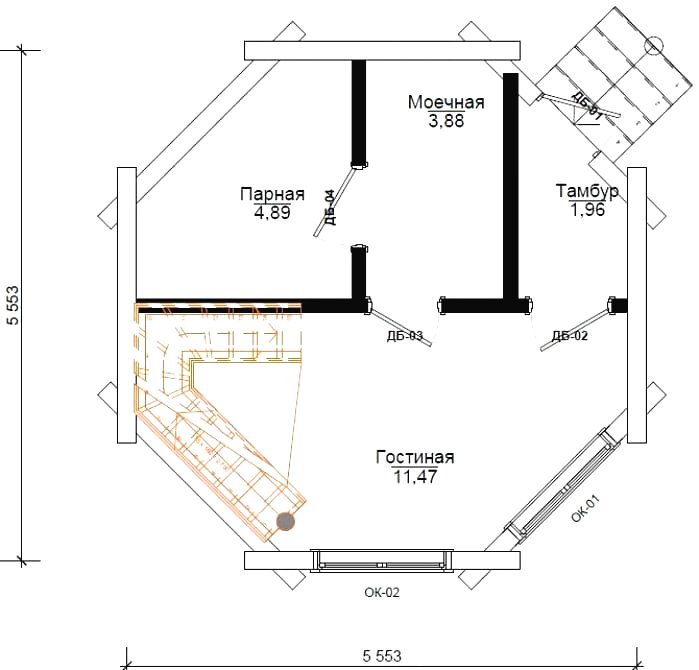
Необычная 8 гранная баня из бруса построена в дачном кооперативе города Сургут. На фото ниже размеры проекта бани.
Можно сделать своими руками!
Источник: instagram.com/p/CBfTxlWnNRg/
Необычная баня из бруса - фото 2
Необычная баня из бруса - фото 3
Необычная баня из бруса - фото 4
Необычная баня из бруса - фото 5
Необычная баня из бруса - фото 6
Похожие записи

Комментарий

Комментариев пока нет.
Выполните вход, чтобы оставить отзыв.