Загрузка...

Необычная угловая баня - фото

Необычная угловая баня

12 фото и 456 просм.

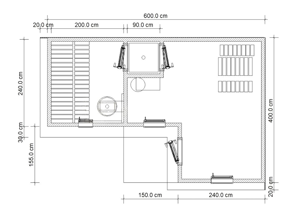
Необычная угловая баня 4х6 с террасой. Внутреннее пространство бани 18 кв. м. разделено на три зоны, большая комната отдыха, душевая кабина и парная. Здесь всё продумано до мелочей и рачительно используется каждый сантиметр площади.
Можно сделать своими руками!
Источник: baniglushakova.ru/katalog/zakruglennye/uglovaya-banya-s-terrasoy/
Необычная угловая баня - фото 2
Необычная угловая баня - фото 3
Необычная угловая баня - фото 4
Необычная угловая баня - фото 5
Необычная угловая баня - фото 6
Необычная угловая баня - фото 7
Необычная угловая баня - фото 8
Необычная угловая баня - фото 9
Необычная угловая баня - фото 10
Необычная угловая баня - фото 11
Необычная угловая баня - фото 12
Похожие записи

Комментарий

Комментариев пока нет.
Выполните вход, чтобы оставить отзыв.