Загрузка...

Необычный дом в лесу - фото

Необычный дом в лесу

22 фото и 217 просм.

Студия архитектурного бюро PIKAPLUS создала великолепный крошечный дом, который прекрасно гармонирует с окружающей природой. Деревянный дом, построенный в основном из дерева, является уютным убежищем.
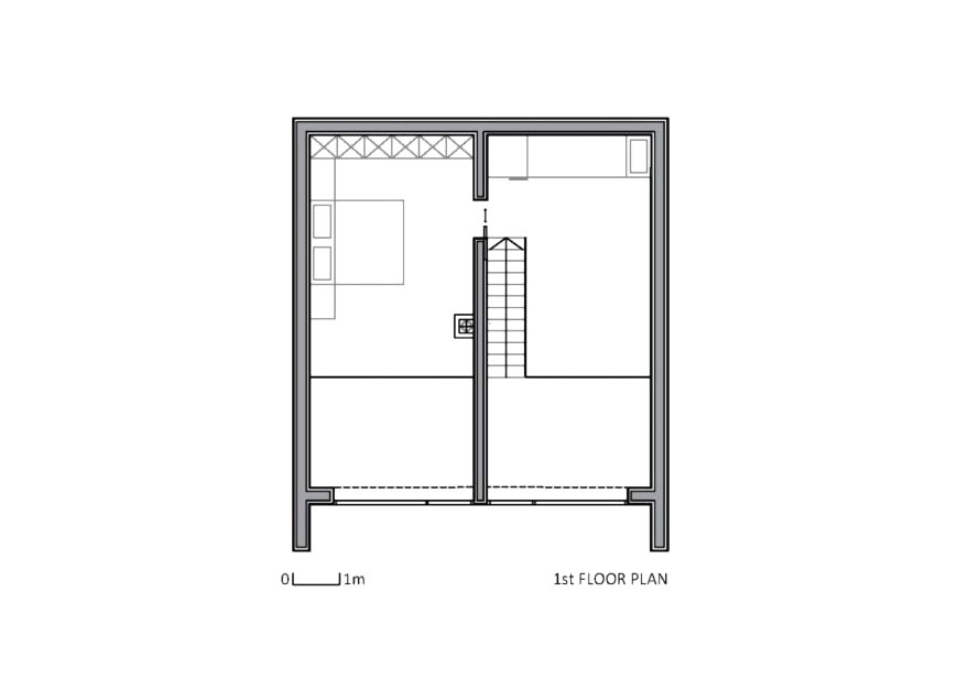
Площадь дома всего 82 квадратных метра на небольшом участке земли.
Резко скатная крыша и наклонные боковые стены придают дому привлекательный вид, но рискуют создать тесный интерьер. Чтобы сделать компактный дом максимально просторным, архитекторы облицовали стены необработанной древесиной, отражающей естественный свет, который льется через большие окна. Гигантский стеклянный фасад открывает вид на улицу в каждой комнате дома, за исключением ванной комнаты.
В 2016 году проект занял второе место в стране среди лучших деревянных конструкций в Словении.
Можно сделать своими руками!
Источник: inhabitat.com
Необычный дом в лесу - фото 2
Необычный дом в лесу - фото 3
Необычный дом в лесу - фото 4
Необычный дом в лесу - фото 5
Необычный дом в лесу - фото 6
Необычный дом в лесу - фото 7
Необычный дом в лесу - фото 8
Необычный дом в лесу - фото 9
Необычный дом в лесу - фото 10
Необычный дом в лесу - фото 11
Необычный дом в лесу - фото 12
Необычный дом в лесу - фото 13
Необычный дом в лесу - фото 14
Необычный дом в лесу - фото 15
Необычный дом в лесу - фото 16
Необычный дом в лесу - фото 17
Необычный дом в лесу - фото 18
Необычный дом в лесу - фото 19
Необычный дом в лесу - фото 20
Необычный дом в лесу - фото 21
Необычный дом в лесу - фото 22
Похожие записи

Комментарий

Комментариев пока нет.
Выполните вход, чтобы оставить отзыв.