Загрузка...

Оригинальный дом в 38 кв. м. - фото

Оригинальный дом в 38 кв. м.

17 фото и 247 просм.

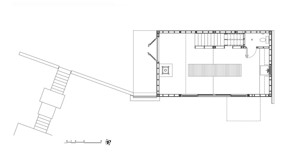
Этот оригинальный дом имеет прочный бетонный пол. Стены белые, чтобы отражать свет, а потолки и чердак покрыты кедром для тепла. Те же самые кедровые доски используются на наружных двускатных стенах. Самая низкая часть крыши образует глубокий выступ над входной дверью. Поместив дополнительную потолочную балку прямо у стены, архитекторы смогли перенести пространство свеса в интерьер, создав полку над дверью.
Источник: smallhousebliss.com
Оригинальный дом в 38 кв. м. - фото 2
Оригинальный дом в 38 кв. м. - фото 3
Оригинальный дом в 38 кв. м. - фото 4
Оригинальный дом в 38 кв. м. - фото 5
Оригинальный дом в 38 кв. м. - фото 6
Оригинальный дом в 38 кв. м. - фото 7
Оригинальный дом в 38 кв. м. - фото 8
Оригинальный дом в 38 кв. м. - фото 9
Оригинальный дом в 38 кв. м. - фото 10
Оригинальный дом в 38 кв. м. - фото 11
Оригинальный дом в 38 кв. м. - фото 12
Оригинальный дом в 38 кв. м. - фото 13
Оригинальный дом в 38 кв. м. - фото 14
Оригинальный дом в 38 кв. м. - фото 15
Оригинальный дом в 38 кв. м. - фото 16
Оригинальный дом в 38 кв. м. - фото 17
Похожие записи

Комментарий

Комментариев пока нет.
Выполните вход, чтобы оставить отзыв.