Загрузка...

Дом и сауна под одной крышей - фото

Дом и сауна под одной крышей

13 фото и 424 просм.

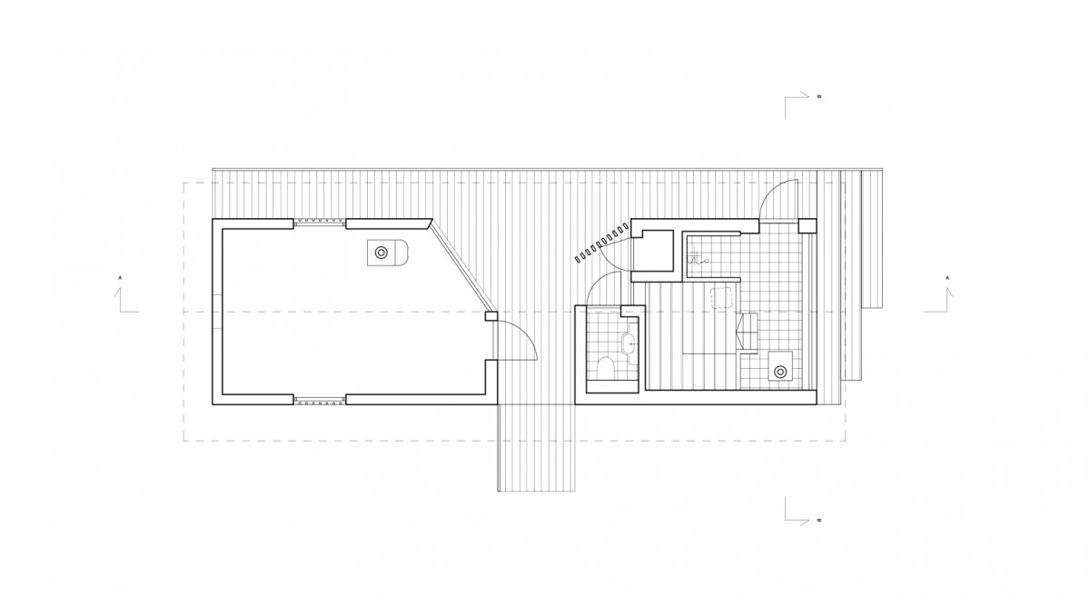
В этом проекте объединили два помещения под одной крышей, сауну и гостевой дом.
Сам дом расположен на северном берегу скалистого острова архипелага Эспоо .
Маленькое здание разделено на две части, расположенные под одной большой крышей; парилка (сауна) и гостевой домик, в котором есть гардеробная.
Из кедровой сауны открывается вид на деревянную дорожку, ведущую на пирс.
Дом полностью построен из поперечно-клееного бруса.
Фасады облицованы елью и выкрашены черной краской «Фалу», а оцинкованная крыша через несколько лет также будет окрашена в темный цвет.
Источник: archdaily.com/931209/sauna-and-guesthouse-mer-architects?ad_source=search&ad_medium=search_result_projects
Дом и сауна под одной крышей - фото 2
Дом и сауна под одной крышей - фото 3
Дом и сауна под одной крышей - фото 4
Дом и сауна под одной крышей - фото 5
Дом и сауна под одной крышей - фото 6
Дом и сауна под одной крышей - фото 7
Дом и сауна под одной крышей - фото 8
Дом и сауна под одной крышей - фото 9
Дом и сауна под одной крышей - фото 10
Дом и сауна под одной крышей - фото 11
Дом и сауна под одной крышей - фото 12
Дом и сауна под одной крышей - фото 13
Похожие записи

Комментарий

Комментариев пока нет.
Выполните вход, чтобы оставить отзыв.