Загрузка...

Одноэтажный каркасный дом - фото

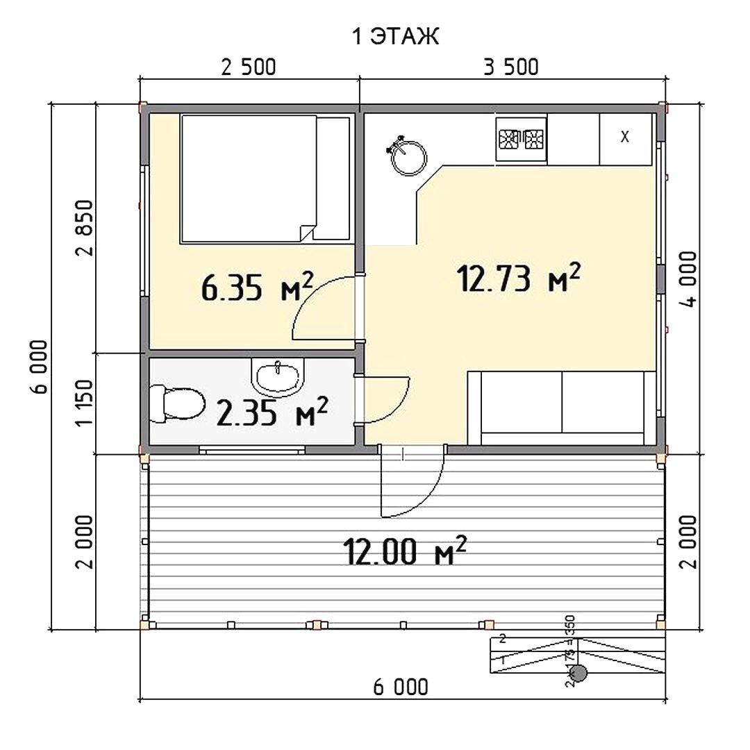
Одноэтажный каркасный дом

9 фото и 484 просм.

Это очень интересный вариант одноэтажного каркасного дачного дома, именно этот построила московская строительная фирма.
В доме просторная кухня - гостиная с большими окнами, спальня и терраса.
Источник: instagram.com/p/CID7GYflpec/
Одноэтажный каркасный дом - фото 2
Одноэтажный каркасный дом - фото 3
Одноэтажный каркасный дом - фото 4
Одноэтажный каркасный дом - фото 5
Одноэтажный каркасный дом - фото 6
Одноэтажный каркасный дом - фото 7
Одноэтажный каркасный дом - фото 8
Одноэтажный каркасный дом - фото 9
Похожие записи

Комментарий

Комментариев пока нет.
Выполните вход, чтобы оставить отзыв.