Загрузка...

Проект двухэтажного каркасного дома 6х8 м - фото

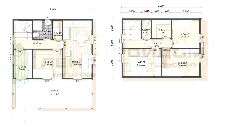
Проект двухэтажного каркасного дома 6х8 м

4 фото и 472 просм.

Предлагаю посмотреть проект двухэтажного каркасного дома 6х8 с большой мансардой.
Источник: lenstroydom.ru/house/karkas-house/315-project-frame-house-2-floor-rif-6-8.html#%D0%BF%D0%BB%D0%B0%D0%BD%D0%B8%D1%80%D0%BE%D0%B2%D0%BA%D0%B8
Проект двухэтажного каркасного дома 6х8 м - фото 2
Проект двухэтажного каркасного дома 6х8 м - фото 3
Проект двухэтажного каркасного дома 6х8 м - фото 4
Похожие записи

Комментарий

Комментариев пока нет.
Выполните вход, чтобы оставить отзыв.