Загрузка...

Маленький домик на колесах для дачи - фото

Маленький домик на колесах для дачи

14 фото и 465 просм.

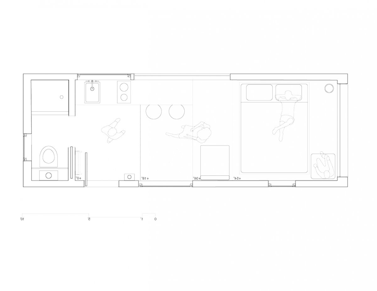
Небольшой домик на колесах для любителей уединенного отдыха на даче или природе. Простой маленький домик построен каркасным способом из дерева. Так же здесь необычное разделение внутреннего пространства на три зоны ( см. схему на фото).
Источник: archdaily.com/799610/getaway-cabin-no-3-the-clara-wyatt-komarin-plus-addison-godine-plus-rachel-moranis
Маленький домик на колесах для дачи - фото 2
Маленький домик на колесах для дачи - фото 3
Маленький домик на колесах для дачи - фото 4
Маленький домик на колесах для дачи - фото 5
Маленький домик на колесах для дачи - фото 6
Маленький домик на колесах для дачи - фото 7
Маленький домик на колесах для дачи - фото 8
Маленький домик на колесах для дачи - фото 9
Маленький домик на колесах для дачи - фото 10
Маленький домик на колесах для дачи - фото 11
Маленький домик на колесах для дачи - фото 12
Маленький домик на колесах для дачи - фото 13
Маленький домик на колесах для дачи - фото 14
Похожие записи

Комментарий

Комментариев пока нет.
Выполните вход, чтобы оставить отзыв.