Загрузка...

Дачный дом с баней из сухого бруса ⠀ - фото

Дачный дом с баней из сухого бруса ⠀

15 фото и 856 просм.

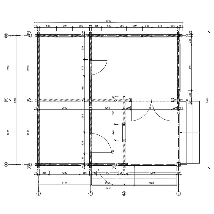
Дом с баней под одной крышей, внутри, был построен строительной фирмой под заказ в Можайском районе.
Общий размер дачного дома с баней 5,2х5,6 метров.
Фундамент для такого домика с баней из бруса выбран свайно-винтовой, с утеплением пола и кровли в 100мм.
Толщина стен 90х145мм из профилированного бруса камерной сушки. Окна ПВХ, двери из массива сосны.
Источник: instagram.com/p/CGRxIdtlDXh/
Дачный дом с баней из сухого бруса ⠀ - фото 2
Дачный дом с баней из сухого бруса ⠀ - фото 3
Дачный дом с баней из сухого бруса ⠀ - фото 4
Дачный дом с баней из сухого бруса ⠀ - фото 5
Дачный дом с баней из сухого бруса ⠀ - фото 6
Дачный дом с баней из сухого бруса ⠀ - фото 7
Дачный дом с баней из сухого бруса ⠀ - фото 8
Дачный дом с баней из сухого бруса ⠀ - фото 9
Дачный дом с баней из сухого бруса ⠀ - фото 10
Дачный дом с баней из сухого бруса ⠀ - фото 11
Дачный дом с баней из сухого бруса ⠀ - фото 12
Дачный дом с баней из сухого бруса ⠀ - фото 13
Дачный дом с баней из сухого бруса ⠀ - фото 14
Дачный дом с баней из сухого бруса ⠀ - фото 15
Похожие записи

Комментарий

Комментариев пока нет.
Выполните вход, чтобы оставить отзыв.