Загрузка...

Дом в амбарном стиле - фото

Дом в амбарном стиле

20 фото и 468 просм.

Идей этого проекта заключалась в строительстве дома в амбарном стиле.
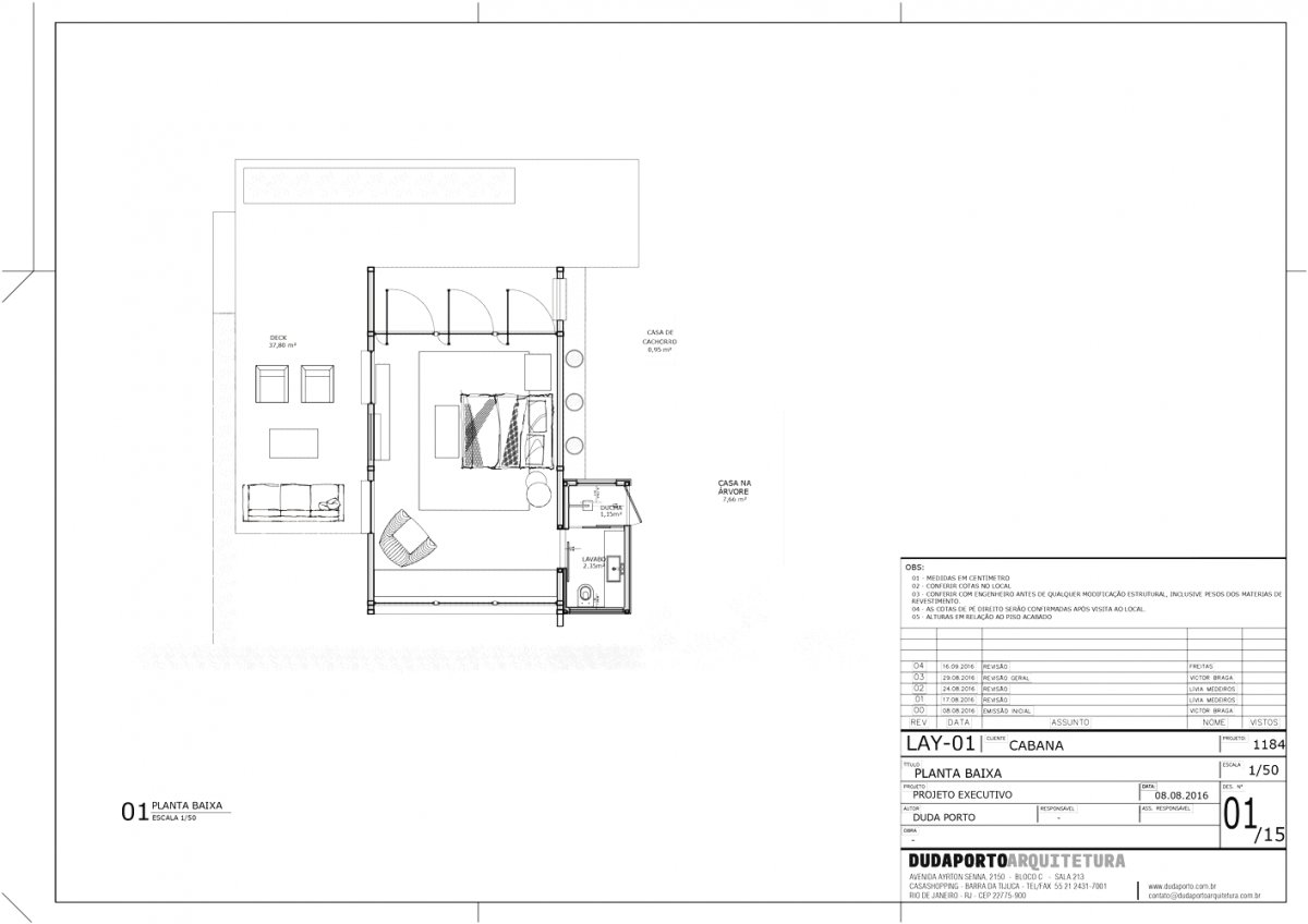
Дом может расти в соответствии с потребностями семьи за счет размещения новых модулей без повреждения конструкции. Дом состоит из основного модуля размером 7,95 м на 4,30 м и примыкающей к нему ванной комнаты площадью 5,10 м², размер дома 39,30 м².
Дом построен из стального каркаса и термоакустической облицовки, OSB, гидрофобного покрытия и, наконец, бетонных панелей.
На прилегающей территории дома есть домик на дереве для детей, домик для домашних животных и огород.
Интересно то, что все три дома имеют одинаковую форму, только разные размеры.
Можно сделать своими руками!
Источник: archdaily.com/944993/cabanas-tiny-house-duda-porto-arquitetura
Дом в амбарном стиле - фото 2
Дом в амбарном стиле - фото 3
Дом в амбарном стиле - фото 4
Дом в амбарном стиле - фото 5
Дом в амбарном стиле - фото 6
Дом в амбарном стиле - фото 7
Дом в амбарном стиле - фото 8
Дом в амбарном стиле - фото 9
Дом в амбарном стиле - фото 10
Дом в амбарном стиле - фото 11
Дом в амбарном стиле - фото 12
Дом в амбарном стиле - фото 13
Дом в амбарном стиле - фото 14
Дом в амбарном стиле - фото 15
Дом в амбарном стиле - фото 16
Дом в амбарном стиле - фото 17
Дом в амбарном стиле - фото 18
Дом в амбарном стиле - фото 19
Дом в амбарном стиле - фото 20
Похожие записи

Комментарий

Комментариев пока нет.
Выполните вход, чтобы оставить отзыв.